Lokace: Suchdol, Praha
Investor: Česká zemědělská univerzita v Praze
Projekt: mjölking s.r.o.
Autor: Jan Mach, Tobiáš Hrabec, František Fiedler

Lesovna Fakulty lesnické a dřevařské

Na Lesnické a dřevařské fakultě České zemědělské univerzity v Praze se na své budoucí povolání připravují myslivci, lesní hospodáři, dřevaři, ochránci přírody i krajinní inženýři. Všechny studijní obory spojuje poslání spjaté s péčí o krajinu, les a dřevo jako perspektivní materiál budoucnosti. Ale všichni dobře víme, že vysoká škola je víc než jen přednášky, zkoušky a cvičení. Léta strávená na akademické půdě by měla studentům poskytovat svobodu rozvíjet se i mimo stanovené studijní plány.
Jako absolventi liberecké fakulty architektury rádi vzpomínáme na svá studentská léta. Když jsme zrovna nevymýšleli baráky, nemžourali do výkresů nebo se na poslední chvíli nebiflovali na státnice ze statiky, pořádali jsme vlastní přednášky, workshopy, ale i bujaré večírky nebo turnaje ve florbale a ping-pongu. To všechno se mohlo odehrávat, protože jsme k tomu měli prostor. Naše škola měla velký otevřený ateliér, který byl studentům přístupný čtyřiadvacet hodin denně. Prostor, který byl původně zamýšlen pro práci na projektech, se přirozeně stal naším životním prostředím, kde mohly vznikat naše nejdivočejší nápady a záměry.
Fakulta lesnická a dřevařská disponuje špičkově vybavenými učebnami, dílnami i laboratořemi – místy navrženými přesně pro specifické typy odborné výuky. Co ale fakultě dlouho chybělo, bylo místo, kde by studenti mohli trávit volný čas, scházet se v rámci studentských spolků, pořádat vlastní akce nebo zkoušky trubačského kruhu.
Jedním z mnoha poslání fakulty je i výzkum a propagace využití dřeva jako udržitelného materiálu ve stavebnictví. V rozptylu studijních oborů a programů se studenti, vyučující i vědečtí pracovníci zabývají dřevem od sazeničky v lese až po dřevěné konstrukce a jejich chování ve stavbě.

Ačkoliv se situace pomalu mění a naši evropští sousedé už ze dřeva směle staví školy, kanceláře i výškové budovy pro kulturu nebo bydlení, u nás jako by stále převládala opatrná skepse. Pod pojmem dřevostavba si mnozí stále představí spíš chatu nebo nanejvýš rodinný dům, kde je všechno dřevo schované pod vrstvou sádrokartonu a polystyrenu. Technologie zpracování dřeva se ale za poslední dekády výrazně posunuly a stavět ze dřeva dnes už neznamená jen trámky, sloupky a roubenky. Precizním opracováním a pevným lepením vznikají velké BSH nosníky nebo CLT panely, které bez problémů překonávají rozpony potřebné pro veřejné stavby.
Potřeba neformálního prostoru pro studentský a spolkový život se tak na fakultě přirozeně potkala s touhou a ambicí postavit dům, který ukáže možnosti dřeva jako současného konstrukčního materiálu. Škola se odvážně postavila do role klienta i stavitele zároveň. Řada partnerů a lesních hospodářství přislíbila darem dřevo, z něhož dodavatelé připraví konstrukční prvky. V září jsme společně poklepali na základní kámen a začalo dobrodružství, kterého se v rámci výuky zúčastní i studenti fakulty.
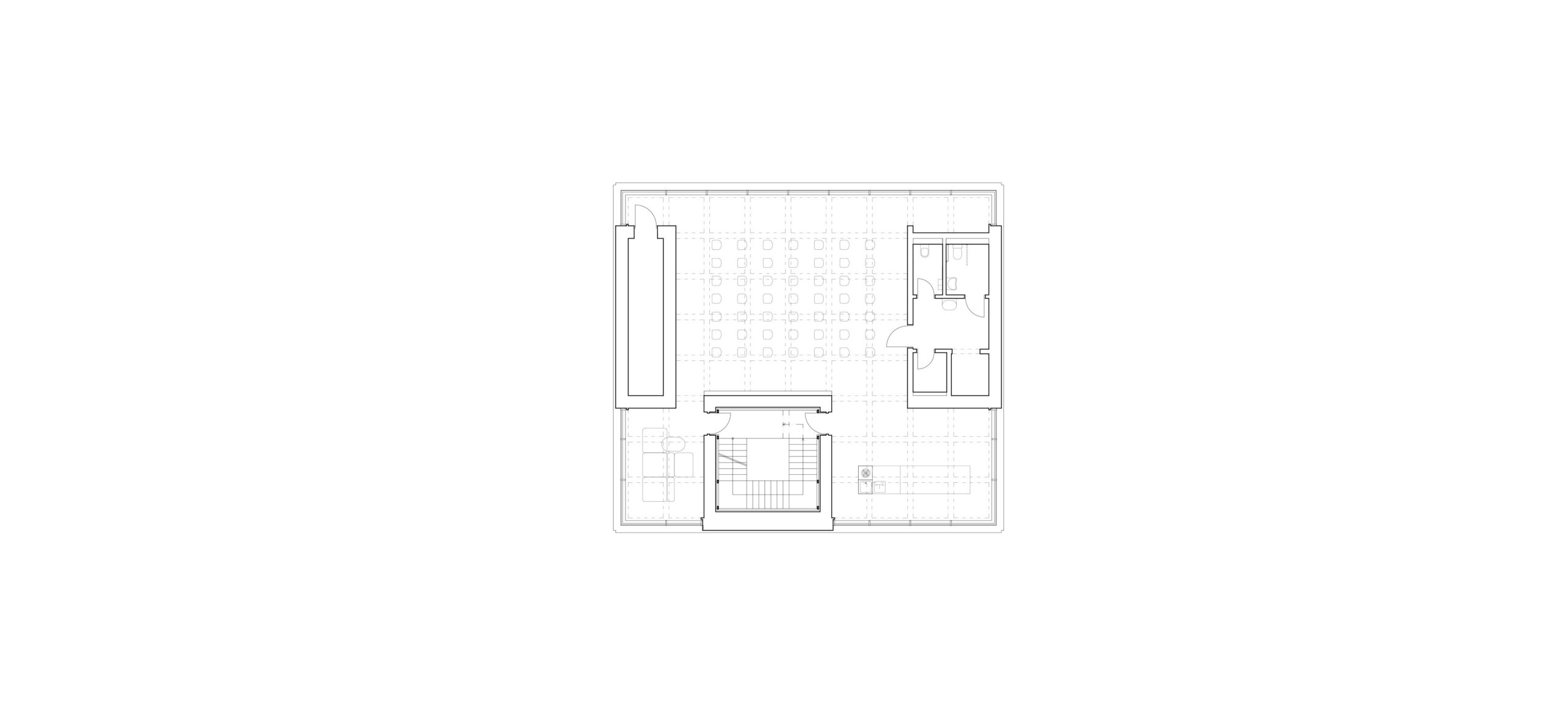
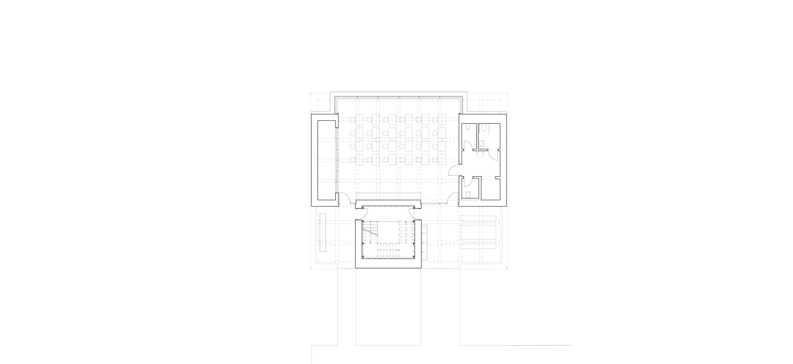
V následujícím roce vyroste v areálu České zemědělské univerzity v pražském Suchdole velkorysý dřevěný dům, který se za svůj materiál nestydí. Většina dřevěných konstrukčních prvků bude pohledově přiznaná – ať už půjde o stěnové CLT panely nebo vysoké voštiny z BSH nosníků. Ve spodním patře učebna, ve vrchním klubovna. Dole byznys, nahoře párty. Lapidární dispoziční schéma budovy doplňují kryté venkovní prostory pod vykonzolovanými nárožími a otevřené schodiště vedoucí na pobytovou střechu s výhledem na přilehlý libosad.
Budova nové Lesovny FLD je experimentální stavbou. Dřevěná konstrukce bude protkána čidly, která sledují průhyby, vibrace, vlhkost, teplo a další parametry. Většina technologií i zařízení bude v interiéru přiznaná, aby studenti mohli vidět, kudy a jak budovou procházejí. Protože je Lesovna především místem studentů, vznikl její mobiliář ve spolupráci se studenty pod vedením Mgr. Markéty Daňkové.

Tím nejdůležitějším experimentem totiž bude, jak sami studenti s novým prostorem naloží. A my už se nemůžeme dočkat. Víc než data o vlhkosti dřeva a průhybu nosníků nás bude zajímat, kolik studentských večírků se protáhne do noci, kolik zdánlivě naivních nápadů se zrodí – a jestli mezi zkouškami trubačského kruhu v Lesovně zakoření i nová přátelství.