Lokace: Dařenice, ČR
Investor: soukromý
Rok projektu: 2025
Zastavěná plocha: 3205 m²
Autor: Jan Vondrák, Tobiáš Hrabec, Anton Murauliou

Dvůr Dařenice

Klient nám svěřil úkol navrhnout projekt multifunkčního areálu v místě Dařenického dvora — v malebné krajině u vesnice Loukov, na hranici Středočeského a Libereckého kraje. Hlavní hodnotou tohoto území je Sýpka se vzácnou zvonovitou střechou a unikátní konstrukcí krovu, typickou pro francouzskou architekturu 19. století. Pravděpodobně to souvisí s tím, že dvůr původně patřil francouzskému rodu Rohanů.
Konečně jsem tady. Po dlouhé cestě zpomaluji před pivovarem, studený kov obalil budovu se slibem tepla uvnitř. Zaparkuju svého veterána vedle řady naleštěných aut – zítra startuje rallye. Míhající se siluety, útržky rozhovorů a cinkot sklenic mi připomínají blížící se večeři a útulné nocležiště.

Uvnitř mě okamžitě obklopí vůně sladu a pečeného masa. Tlumená hudba a žhavé debaty dávají jasně najevo – restaurace je plná. Prodírám se hlouběji a hledám volné místo u barového pultu. Společnost vedle řeší konferenci, která se má konat v Sýpce. Ta budova stojí jen pár kroků odsud. Zítra navštívím její galerii a coworking.

Vyhlédnu z okna: komplex zdejších domů vytváří nádvoří. Stromy na něm vrhají dlouhé stíny a mezi nimi čekají veteráni připraveni na start. Vedle pivovaru stojí nová budova autoservisu. Všechna vrata jsou dokořán, je vidět, jak v hloubce na zvedácích stojí stará auta – mechanici jim dávají poslední doteky. Hned vedle, ve stodole s jasným světlem uvnitř, se schovávají další veteráni: některé jako exponáty, jiné zítra vyrazí na trať.

Můj pohled sklouzne k nové budově – Stáj. Na její střeše se tyčí kovový světlík, který se v noci září neonem a ukazuje cestu. Dnes se tu sešlo mnoho hostů: sleduji, jak se dvůr mění v letní kino. Mezi sloupy je napnuté plátno, lidé si přinášejí židle, někteří zůstávají v autech. Všechno utichá, světla pohasínají — a plátno ozáří první záběry filmu.
Areál a koncepce

Dnes je využívána jen část budov a dvora pro svatby a jiné akce, avšak potenciál celého komplexu zůstává neotevřený kvůli neuspokojivému stavu. Proto jsme se v projektu rozhodli zachovat nejcennější architektonicko-historické objekty, zatímco zaniklé nekopírovat, ale nahradit novostavbami, které respektují výšku a obrys původních staveb. Tento přístup umožní jasně rozlišit historické a současné vrstvy.

Hlavním přáním klienta je proměnit toto místo v domov pro milovníky veteránů – prostor, kde se mohou setkávat, pořádat akce, opravovat a uchovávat vozy. Zároveň má být areál otevřen širší veřejnosti a sloužit jako zázemí pro kulturní a společenské události.
Specifické funkce určují charakter areálu: jeho výraz nevzniká z dekorativního obalu, ale z významové vrstvy, která propojuje současný obsah s historickým kontextem a dodává místu pravdivost. Architektonická koncepce stojí na „citlivém skládání“ fragmentů minulosti do nové kolážní struktury: restaurování cenných prvků se propojuje s moderními materiály, technologiemi a prostorovými řešeními.

Zprovoznění areálu bude probíhat postupně. Prvním objektem se stane Pivovar.
Budova Pivovaru výmluvně odráží přístup k rekonstrukci celého areálu. Je postavena na myšlence technologičnosti, proto je její výraz strohý, funkční a upřímný — s jasnou formou uvnitř i navenek. Vnitřní prostor je rozdělen na tři hlavní části: pivovar, restauraci a hotel v horním patře. Restaurace je přímo propojena s pivovarskou částí prostřednictvím klenutých stropů, pod nimiž vedou technické rozvody osvětlení a vzduchotechniky. Toto řešení podtrhuje technický charakter stavby a činí samotný proces viditelnou součástí vnímání.
Zvenku se Pivovar spojuje se sousední Sýpkou ocelovou konstrukcí, která zároveň vymezuje vjezd do dvora a vizuálně propojuje dva kontrastní objekty.
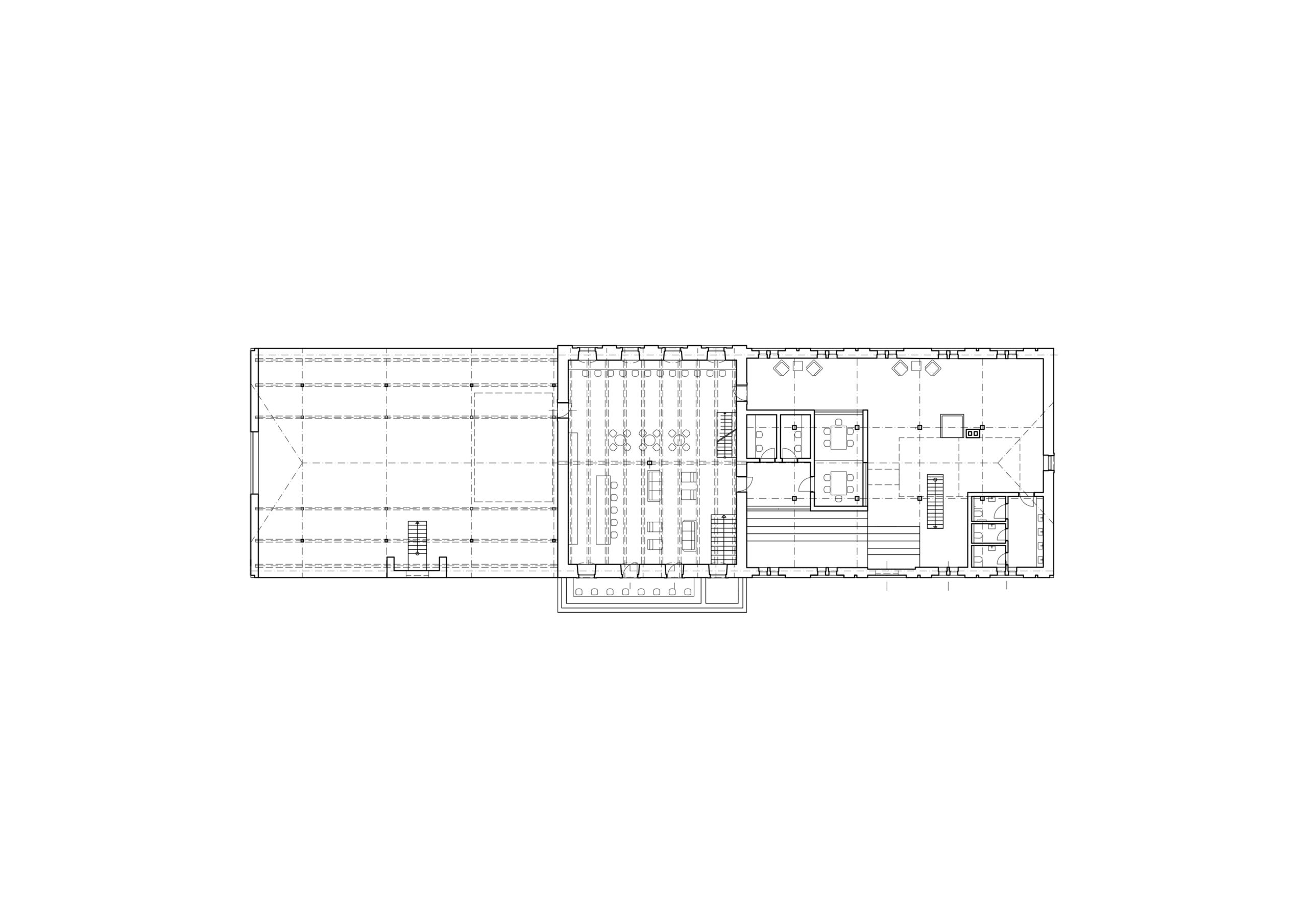
Dominantní budova areálu si uchovává svůj historický charakter, její vzhled je však osvěžen lehkým „faceliftem“. Zůstává rozpoznatelná, ale získává současnější a otevřenější výraz. Fasáda bude světle šedo-bílá, což zdůrazní architektonické detaily — niky, římsy a plastické prvky. V přízemí jsou zvětšeny okenní otvory až k podlaze, díky čemuž se interiéry prosvětlí a otevřou.
Uvnitř je přízemí s klenutými stropy využito pro výstavy a veřejné akce. Pro snadnější přístup je úroveň podlahy snížena na výšku okolního terénu. V centrální části stavby se nachází nové technické jádro s výtahem a sanitárním zázemím. V podkroví je zachována odhalená krovová konstrukce a prostor není dělen klasickými příčkami: jsou zde umístěny lehké moduly pro kanceláře, jednací místnosti a odpočinkovou zónu s kávovým koutkem.
Po obou stranách Sýpky se nacházejí dvě akční plochy. Aby byl zajištěn plynulý pohyb návštěvníků při velkých akcích, fasáda je doplněna velkými okenními dveřmi, které otevírají prostor a propojují interiér s venkovními plochami. Centrální dvůr mezi čtyřmi budovami je využíván pro výstavy a menší akce, doplněn výsadbou stromů a grafickým motivem na trávnících.
Na místě dnešního autoservisu kdysi stála stará stáj, jejíž stav neumožňoval její obnovu. Za ní se otevíral výhled na les a potok protékající za pozemkem. Tento přírodní aspekt jsme využili. Nový autoservis je zároveň praktický a přirozeně zapojený do areálu, přičemž se nebojí reagovat na svůj kontext.
Budova má jednoduchou dvoupodlažní konstrukci s pultovou střechou orientovanou na jih a osazenou solárními panely. Spodní podlaží je vyzděno z cementových bloků — pevného a praktického řešení pro dílnu, myčku a lakovnu. Horní podlaží je z lehké dřevěné konstrukce a obsahuje kanceláře a čekárnu s výhledem do dílny i na les s potokem. Mezi autoservisem a pivovarem je navržena dělicí zeď s průchodem k lesu, čímž se vytváří přirozené napojení areálu na okolní krajinu a pěší trasy vedoucí k řece.
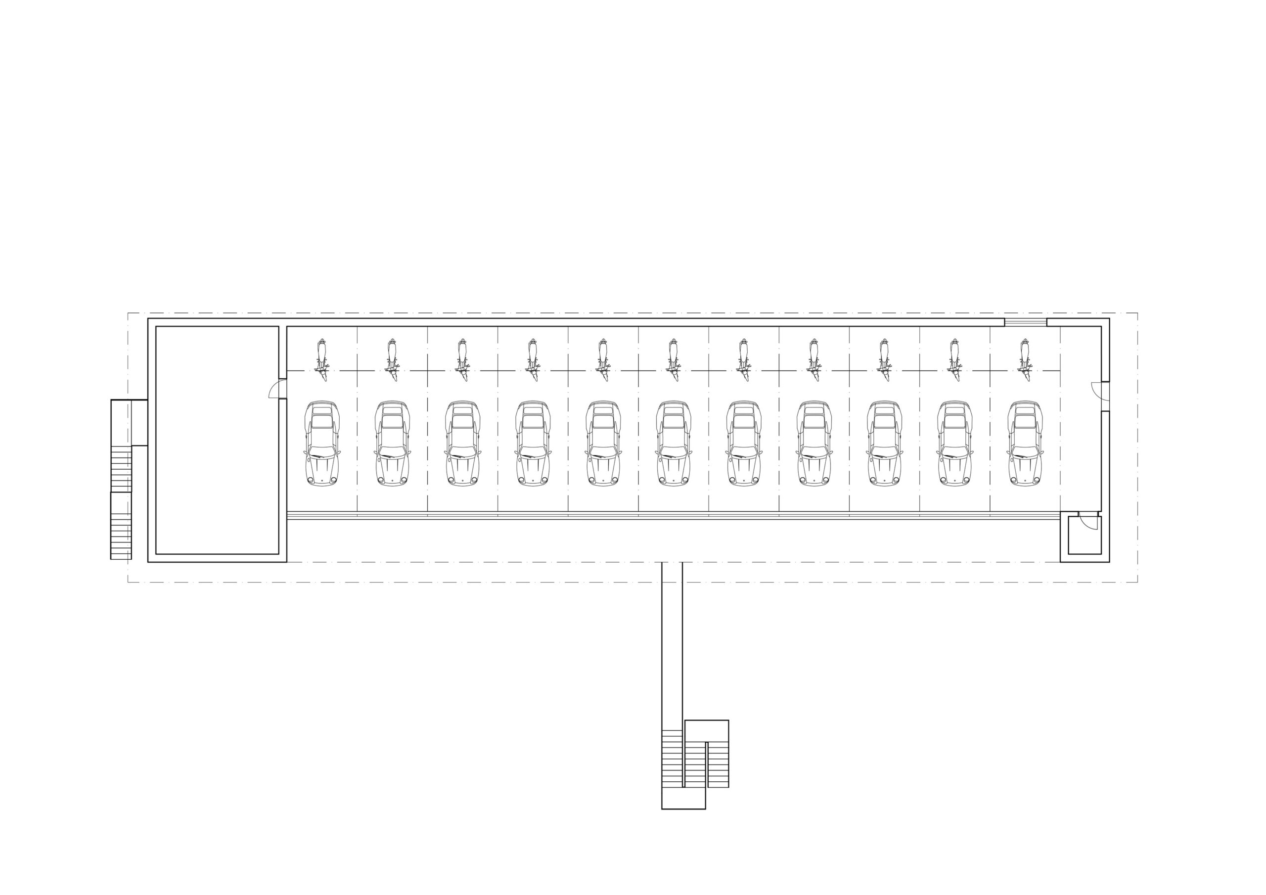
Stodola je historický objekt, adaptovaný pro nové funkce areálu. Jsou zde umístěny cenné automobily a motorky: k původní dřevěné konstrukci přiléhá ocelová stavba s patry pro skladování vozů, vybavená výtahy pro přesun exponátů a točitými schodišti pro návštěvníky.
Stáj je nový objekt, který přirozeně propojuje historickou Stodolu se zbytkem areálu a zároveň ji intimně uzavírá vůči sousední zástavbě, čímž zachovává celistvost areálu. Nachází se zde hotel a parkování.
Přízemí je posunuto dozadu, čímž vzniká otevřený průjezd pro automobily a výrazný vstupní akcent. Centrální světlík z kovové konstrukce s jasným neonem v horním patře slouží jako orientační bod a je dobře viditelný z velké dálky.
Plocha u silnice může sloužit jako parkoviště nebo letní kino, které se večer mění v prostor pro projekce.